Проект "Вилфредо"
17,18
1
1
Площадь кв.м.
Этажи
Комнаты
Ванные
Гараж
Бытовой домик.
Фасад в данном проекте можно легко поменять на любой декоративный материал (штукатурка, кирпич, фасадная плитка и т.п.). Также, по Вашему пожеланию, мы легко можем внести изменения в этот проект.
Без гаража
Без ванной
Прихожая
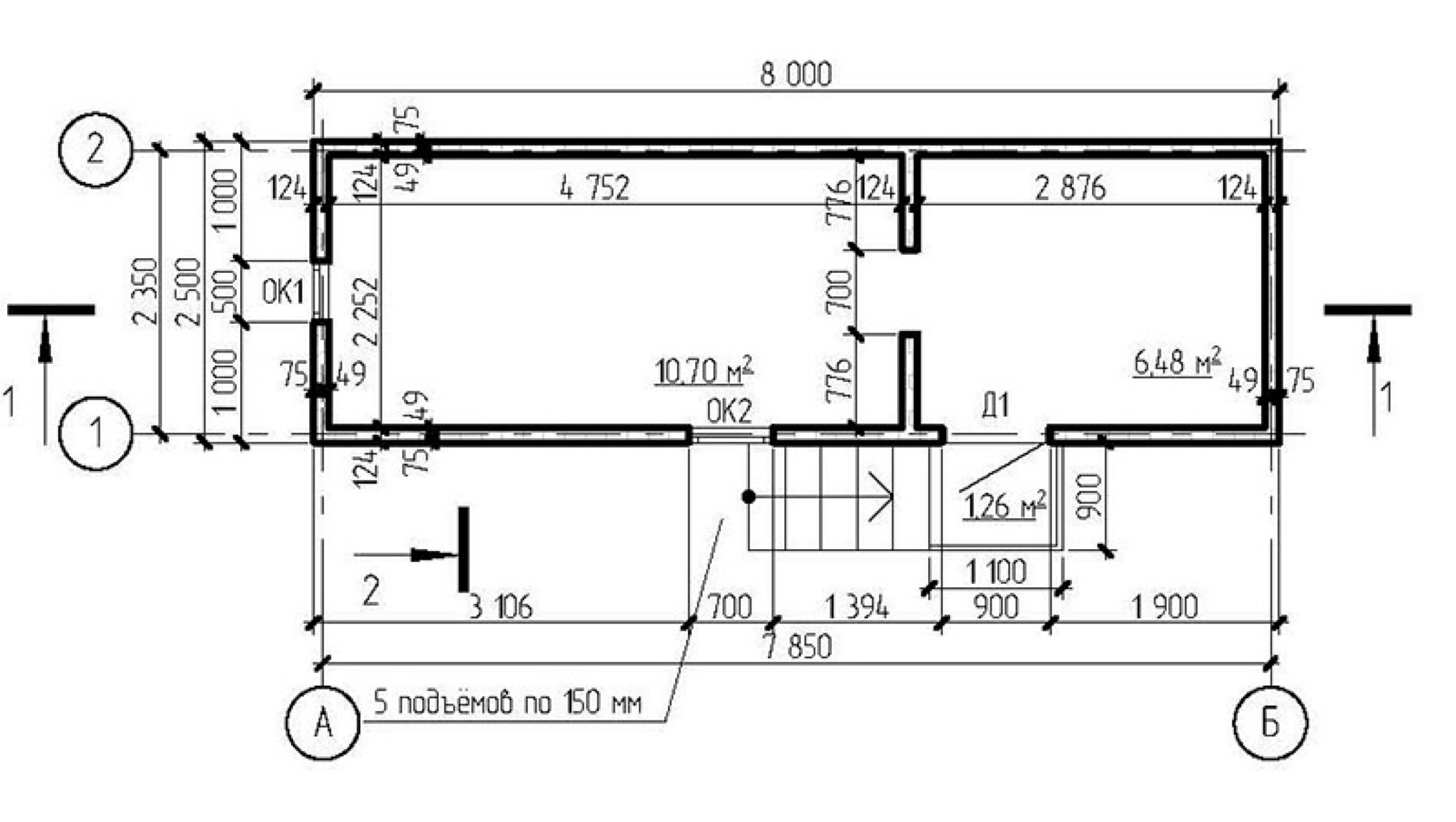
6,48м2
Комната
10,7м2
Фундамент — деревянный ростверк на винтовых сваях
Несущие стены — SIP панель (174мм)
Покрытие — битумная черепица
Наружная отделка — пластиковый сайдинг
Описание
Первый этаж
Фасады
Описание
Первый этаж
Фасады
Описание
Первый этаж
Фасады
Выбрали понравившийся дом?
Узнайте стоимость его строительства!
Made on
Tilda